Nos preocupa tu privacidad En pisos.com utilizamos cookies propias y de terceros para dar un servicio satisfactorio mediante cookies técnicas, de personalización y para fines analíticos. pulsa AQUÍ para más información. Puedes aceptar todas las cookis pulsando el botón "aceptar" o configurarlas o rechazar su uso pulsando
Aceptar Rechazar todas Configurar
Casa en venta en Sa Pobla
  • 108 m2
183.000 €
Solicitar información del inmueble
Enviar
Llámanos ahora
call
615989551

Casa en venta en Sa Pobla

Sa Pobla

REF.: 005231 183.000 €
Contactar ahora
Contactar ahora 615989551
call
Llamar
email
Contactar
call
Llamar
email
Contactar
Detalles del inmueble
  • Precio 183.000 €
  • Referencia 005231
  • Zona Sa Pobla
  • Superficie total 108 m2
  • Superficie solar 108 m2
  • Certificación energética
    Clasificación Exento
  • Descripción
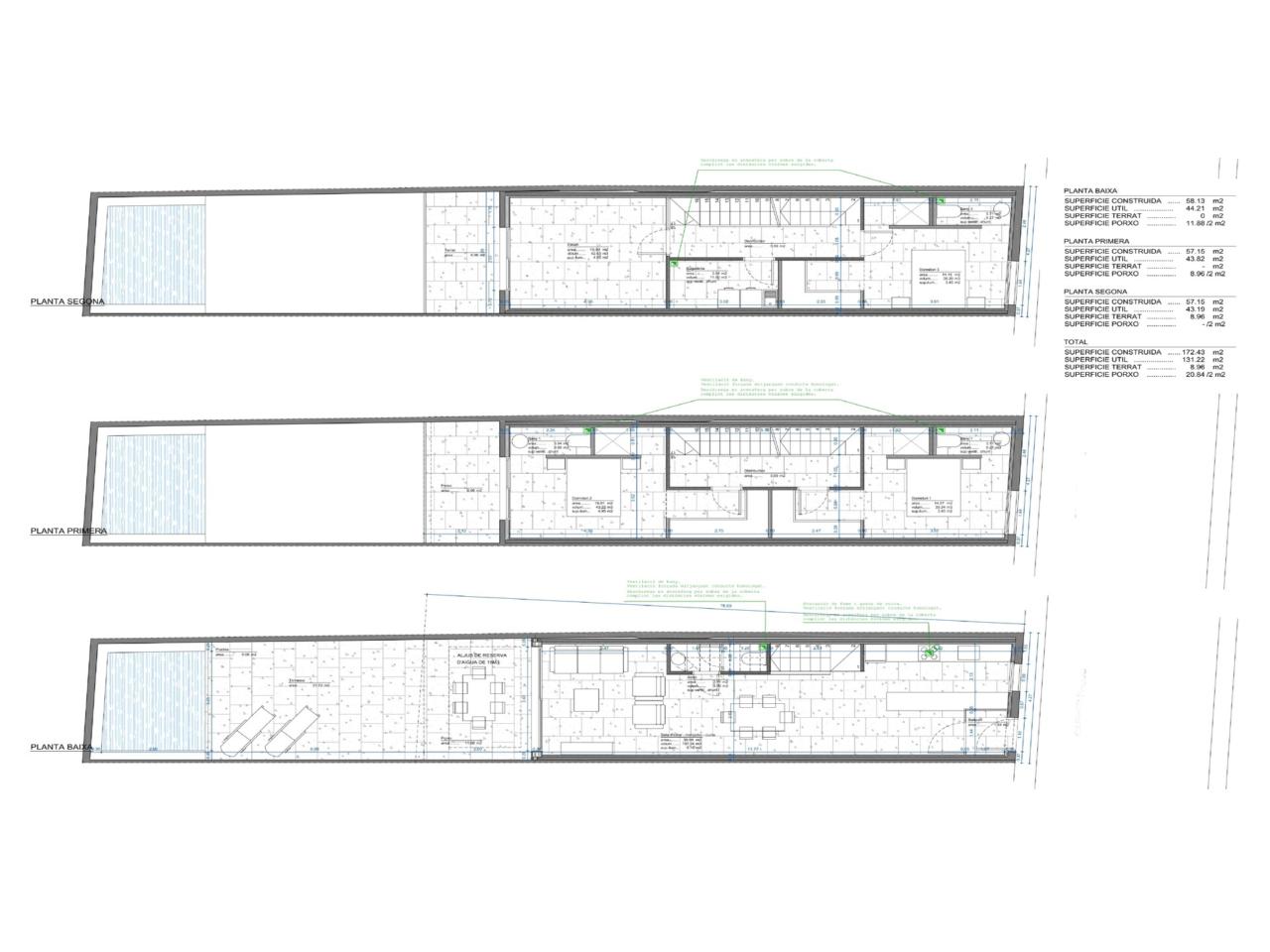
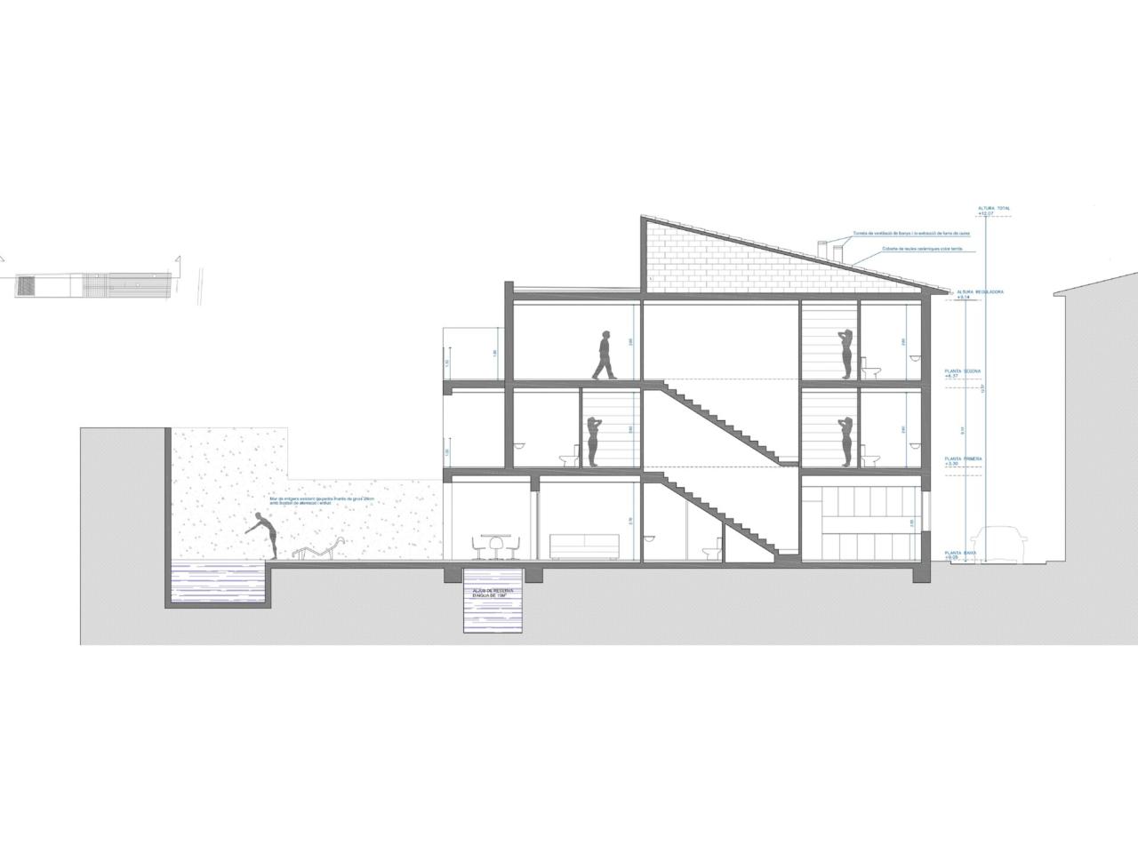
    CASA CON PROYECTO Y LICENCIA DE OBRAS
    PON EL PRIMER LADRILLO A TU NUEVO HOGAR AHORA. Esta es la oportunidad de crear tu propia casa sin demoras con un proyecto y licencia sobre un solar de 108 m2 y ¡olvídate de espera y burocracia.!
    El proyecto consiste en una casa unifamiliar aislada de planta baja y dos alturas de más de 170 m2 construidos con una distribución destinada a obtener la máxima iluminación posible en todas las estancias. El proyecto incluye la construcción de una piscina con espacios ajardinados. En la vivienda destacan amplios espacios para ganar profundidad y volumen la casa. El proyecto incluye una vivienda de tres habitaciones y dos baños completos.
    Sa Pobla, conocido anteriormente como Uialfás y La Puebla de Uialfás, es una poblaciones más conocidas del centro de la isla, por su gente abierta, por lo bien comunicada que está tanto por tren como autopista con Palma de Mallorca, Inca, Consell, Marratxí y Santa María, por la gran cantidad de servicios que ofrece ( supermercados, tiendas, ocio, ... ) y por su situación a 10 minutos de la paradisíacas playas de Alcudia, Pollensa, Muro y Ca n Picafort .

    www.ibhabitat.es
Teléfono

615989551

Email

oficina@ibhabitat.es

Simula tu hipoteca

Calcular